Выберите страну или регион, чтобы контент и товары соответствовали вашему местоположению.
    English English

Главная страница / Проектирование зданий и сооружений / Заключение о соответствии объекта требованиям пожарной безопасности

Заключение о соответствии объекта требованиям пожарной безопасности

Пример оформления "Заключение о соответствии объекта требованиям пожарной безопасности"

Исходные данные для проектирования:

Стоимость разработки проекта

от 100 000 руб.

Каждый участок по-своему уникален.

Стоимость зависит от множества факторов.

Для оценки точной стоимости разработки документации обратитесь в офис нашей компании.

Сроки разработки проекта

От двух недель, в зависимости от сложности проекта и загруженности проектного отдела.

Обращаем внимание!Обращаем внимание!

Рекомендуем заказывать разработку раздела за два-три месяца до начала строительных работ.

Позвоните нам!

Звонок по России бесплатный

Мы перезвоним вам

Мы с удовольствием ответим на все интересующие вас вопросы по срокам и стоимости разработки интересующего вас раздела.

Содержание раздела НК:



Пример оформления заключения о соответствии объекта требованиям пожарной безопасности

Заключение о соответствии объекта требованиям пожарной безопасности - Титульный лист 1Титульный лист 1
Заключение о соответствии объекта требованиям пожарной безопасности - Титульный лист 2Титульный лист 2


Заключение о соответствии объекта требованиям пожарной безопасности 1Содержание
Заключение о соответствии объекта требованиям пожарной безопасности 2Заключение


Заключение о соответствии объекта требованиям пожарной безопасности 3Заключение
Заключение о соответствии объекта требованиям пожарной безопасности 4Заключение


Заключение о соответствии объекта требованиям пожарной безопасности 5Заключение
Заключение о соответствии объекта требованиям пожарной безопасности 5Заключение


Заключение о соответствии объекта требованиям пожарной безопасности 61Заключение
Заключение о соответствии объекта требованиям пожарной безопасности 6Заключение


Заключение о соответствии объекта требованиям пожарной безопасности 7Заключение
Заключение о соответствии объекта требованиям пожарной безопасности 7Заключение


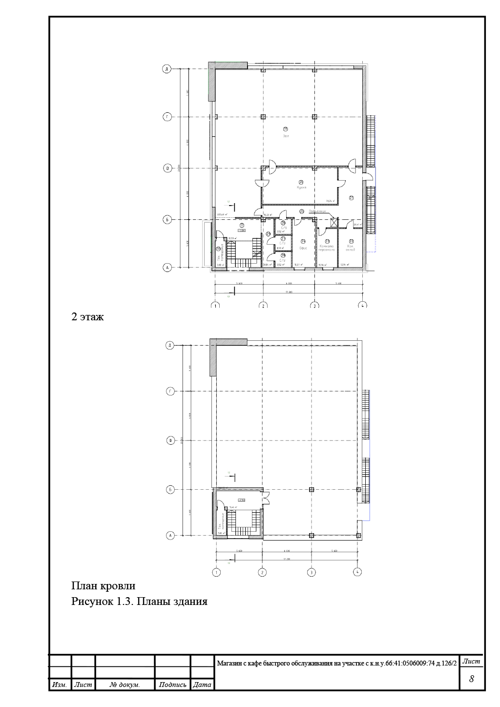
Заключение о соответствии объекта требованиям пожарной безопасности 8Заключение
Заключение о соответствии объекта требованиям пожарной безопасности 9 class=Заключение


Заключение о соответствии объекта требованиям пожарной безопасности 10Заключение
Заключение о соответствии объекта требованиям пожарной безопасности 11Заключение


Заключение о соответствии объекта требованиям пожарной безопасности 12Заключение
Заключение о соответствии объекта требованиям пожарной безопасности 13Заключение


Заключение о соответствии объекта требованиям пожарной безопасности 14Заключение
Заключение о соответствии объекта требованиям пожарной безопасности 15Заключение


Заключение о соответствии объекта требованиям пожарной безопасности 16Заключение
Заключение о соответствии объекта требованиям пожарной безопасности 17Заключение


Заключение о соответствии объекта требованиям пожарной безопасности 18Заключение
Заключение о соответствии объекта требованиям пожарной безопасности 19Заключение


Заключение о соответствии объекта требованиям пожарной безопасности 20Заключение
Заключение о соответствии объекта требованиям пожарной безопасности 21Заключение


Заключение о соответствии объекта требованиям пожарной безопасности 22Заключение
Заключение о соответствии объекта требованиям пожарной безопасности 23Заключение



Возврат к списку

Акция





Новости компании
6 сентября
Повышение квалификации

Рекомендуем удобный сервис по поиску образовательных курсов

26 марта
Карантинная неделя

Режим работы компании в период карантинной недели c 30 марта по 5 апреля 2020 г.

2 июля
Дизайн интерьера - новый раздел на сайте

Новый раздел на нашем сайте посвященный дизайну интерьера. Весь спектр проектных работ в одном месте.